شمس 34 ( موسوی قوچانی )
سامانه فروش
توضیحات پروژه

پروژه شمس 34 دربلوار موسوی قوچانی واقع شده و با کاربری مسکونی می باشد.

  • مساحت زمین : 48315 متر مربع
  • زیر بنای کل : 164844 متر مربع
  • زیر بنای مفید : 125169 متر مربع
  • تعداد طبقات : پروژه در 6 طبقه با کاربری‌های متنوع طراحی شده است.
  • تاریخ شروع عملیات اجرایی : 1401/01/26
پیشرفت فیزیکی پروژه

پیشرفت پروژه تا کنون:

%
11
انجام شده
باقی مانده

شمس 34 ( موسوی قوچانی )
  • شمس 34 ( موسوی قوچانی )
  • شمس 34 ( موسوی قوچانی )
  • شمس 34 ( موسوی قوچانی )
  • شمس 34 ( موسوی قوچانی )
  • شمس 34 ( موسوی قوچانی )
  • شمس 34 ( موسوی قوچانی )
امکانات پروژه

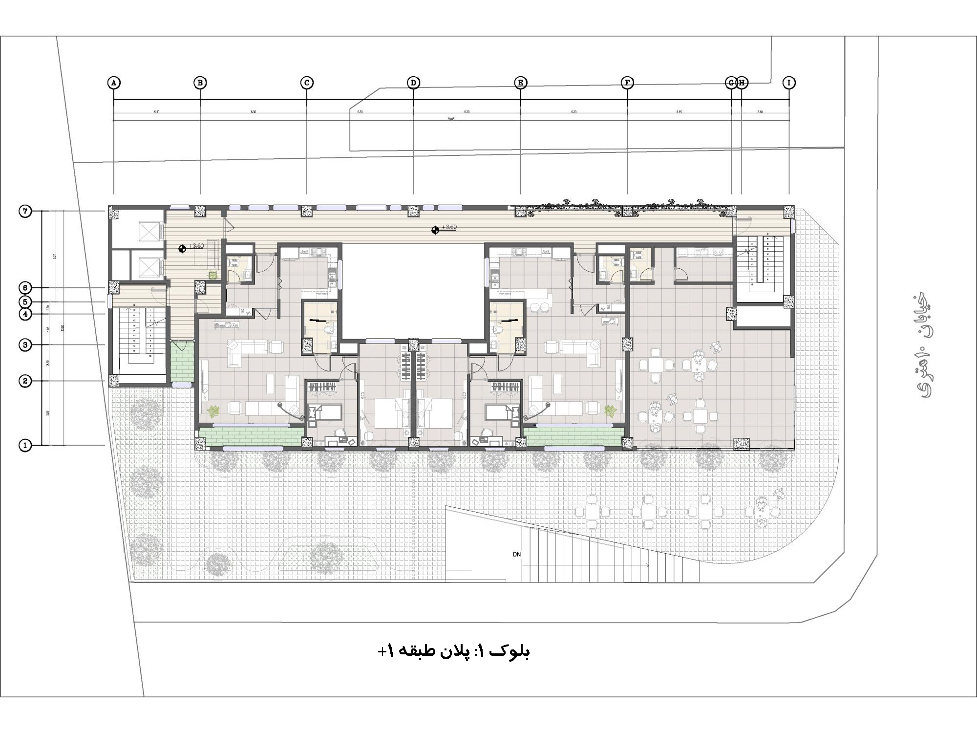
تصاویر پلان پروژه
  • Presentation1_Page_01
  • Presentation1_Page_02
  • Presentation1_Page_03
  • Presentation1_Page_04
  • Presentation1_Page_05
  • Presentation1_Page_06
  • Presentation1_Page_07
  • Presentation1_Page_08
  • Presentation1_Page_09
  • Presentation1_Page_10
اطلاعات تماس پروژه
نشانی: مشهد
موقعیت مکانی پروژه

دریافت اطلاعات بیشتر

تصویر امنیتی
کد امنیتی را وارد نمایید: